Negozio in vendita

Milano, Piazza Lega Lombarda - Arena Civica
€ 320.000
2 locali 2 locali
43 Mq 43 Mq

Negozio in vendita

Milano, Piazza Lega Lombarda - Arena Civica

Descrizione annuncio

Piazza Lega Lombarda:

a pochi passi dall'Arena Civica, in stabile d'epoca con facciate appena rifatte, proponiamo in VENDITA negozio commerciale attualmente a reddito.

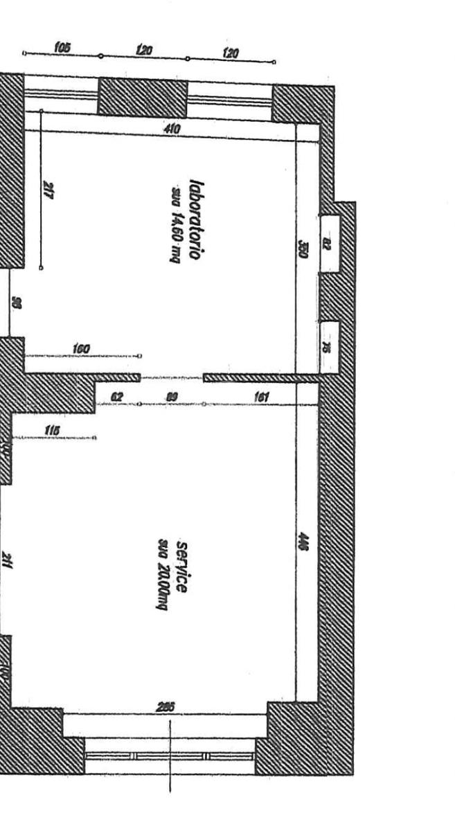
L'immobile è composto da 1 vetrina su strada, due locali al suo interno e una cantina di pertinenza.

Attualmente concesso in locazione con scadenza dei secondi 6 anni nel 2031 risulta essere una ottima soluzione di investimento, con una rendita interessante in considerazione della posizione e delle potenzialità dell'immobile.

A breve verranno inserite le foto interne dell'immobile che si presenta in ottime condizioni e che non necessita di interventi di ristrutturazione.

Spese condominiali contenute di . 1400,00 € annui.

Per qualsiasi informazione o per fissare un appuntamento non esitate a contattarci, anche tramite whatsapp.

Mostra tutto

Nelle vicinanze

Trasporto pubblico Trasporto pubblico
Moscova
Moscova
550 m
Lanza
Lanza
730 m
Milano Nord Cadorna
Milano Nord Cadorna
1,0 Km
Milano Porta Garibaldi passante
Milano Porta Garibaldi passante
1,0 Km
Piazza Lega Lombarda
Piazza Lega Lombarda
260 m
Ricariche auto elettriche Ricariche auto elettriche
A2A Volta
580 m
Hotel Viu Milano
640 m
A2A Isola Digitale Corso Como - Porta Garibaldi
780 m
Green Park
830 m
BeCharge Milano Arco
950 m
Scuole Scuole
Scuola Primaria Giusti
300 m
Scuola Secondaria di Primo Grado Panzini
300 m
Istituto Daniele Marignoni Marco Polo
330 m
Liceo Carlo Tenca
360 m
I.T.C. Carlo Tenca
400 m
Farmacia Farmacia
Farmacia
50 m
Canonica
280 m
Società Cooperativa Farmaceutica
430 m
Farmacia Sempione
520 m
Farmacia del Garibaldi
520 m
Ospedali Ospedali
Fatebenefratelli
1,1 Km
Ospedale dei Bambini "Vittore Buzzi"
1,2 Km
Poliambulatorio Sassi
1,2 Km
Ospedale San Giuseppe
1,6 Km
Clinica Columbus
1,8 Km
Supermercati Supermercati
Punto Simply
110 m
Kathay
440 m
Naturasì
490 m
Auchan
510 m
Superpolo
560 m
Negozi Negozi
Negozi
190 m
Canadian Outlet
210 m
Carrefour Express
220 m
Fratelli Castellana
250 m
Lirecento
300 m
Bar Bar
Bar
150 m
Bar Felice
170 m
La bottega del vino
190 m
Pils Pub
200 m
Living
340 m
Ristoranti Ristoranti
Ristorante L'essenziale
140 m
El Porteño Arena
170 m
La cantina del Giannone
200 m
Margot
230 m
Ristorante Nuova Arena
240 m
Mostra tutto

Caratteristiche

Rif.:
61149780
Piano:
Terra di 5 con ascensore
Totale piani:
5
Condizionamento:
Autonomo
Ascensore:
Riscaldamento:
Autonomo
Mostra tutto
Prezzo Prezzo
€ 320.000
Rata mutuo Rata mutuo
€ 1.510 / mese
Spese annue Spese annue
€ 1.400
Proponi il tuo prezzoProponi il tuo prezzo

Altre caratteristiche

Descrizione dei locali
Bagno Con Finestra

Classe Energetica

F
F
F
F
F
F
F
F
F
EP globale non rinnovabile:
1.00 kW h/m² anno
EP globale rinnovabile:
1.00 kW h/m² anno
EP invernale del fabbricato:
EP estiva del fabbricato:
Anno di costruzione:
1900
Riscaldamento:
Autonomo
Tipo impianto:
Ad aria
Tipo alimentazione:
Altro

Ti interessa visionare l'immobile?

Fissa un appuntamento  Fissa un appuntamento

Richiedi informazioni

Clicca su Leggi per aprire l'informativa
* Questi campi sono obbligatori

Calcola il tuo mutuo

Semplice e senza impegno
Anticipo

( % )
Mutuo

( % )

pochi semplici passi

inserisci i tuoi dati
Questionario completato
Grazie per aver richiesto un appuntamento senza impegno con un nostro Consulente del Credito e Assicurativo.

Hai inserito correttamente tutti i dati necessari e a breve riceverai una e-mail con un link da convalidare per inviare i tuoi dati.
Affiliato
Tecnosviluppo Tibaldi Sas
Via Lodovico il Moro, 59 20143 Milano (MI)

Il nostro staff


  • Federica Uva
    Coordinatrice

  • Cristian Fragale
    Affiliato
Via Lodovico il Moro, 59 20143 Milano (MI)
Zona: Lodovico il Moro
Mostra su mappa
Affiliato
Tecnosviluppo Tibaldi Sas
Via Lodovico il Moro, 59 20143 Milano (MI)

2025 Tecnocasa Franchising S.p.A. - P. IVA 08365160152 - Via Monte Bianco 60/A 20089 Rozzano (MI). Ogni agenzia ha un proprio titolare ed è autonoma. Privacy policy | Policy utilizzo | Cookie policy